Fantastic Chirn Park Opportunity Available Now!

This 133m2 retail tenancy is not available for lease in the thriving Chirn Park locale.

Located on bustling Musgrave Avenue with its cafes, restaurants, shopping opportunities and important services.

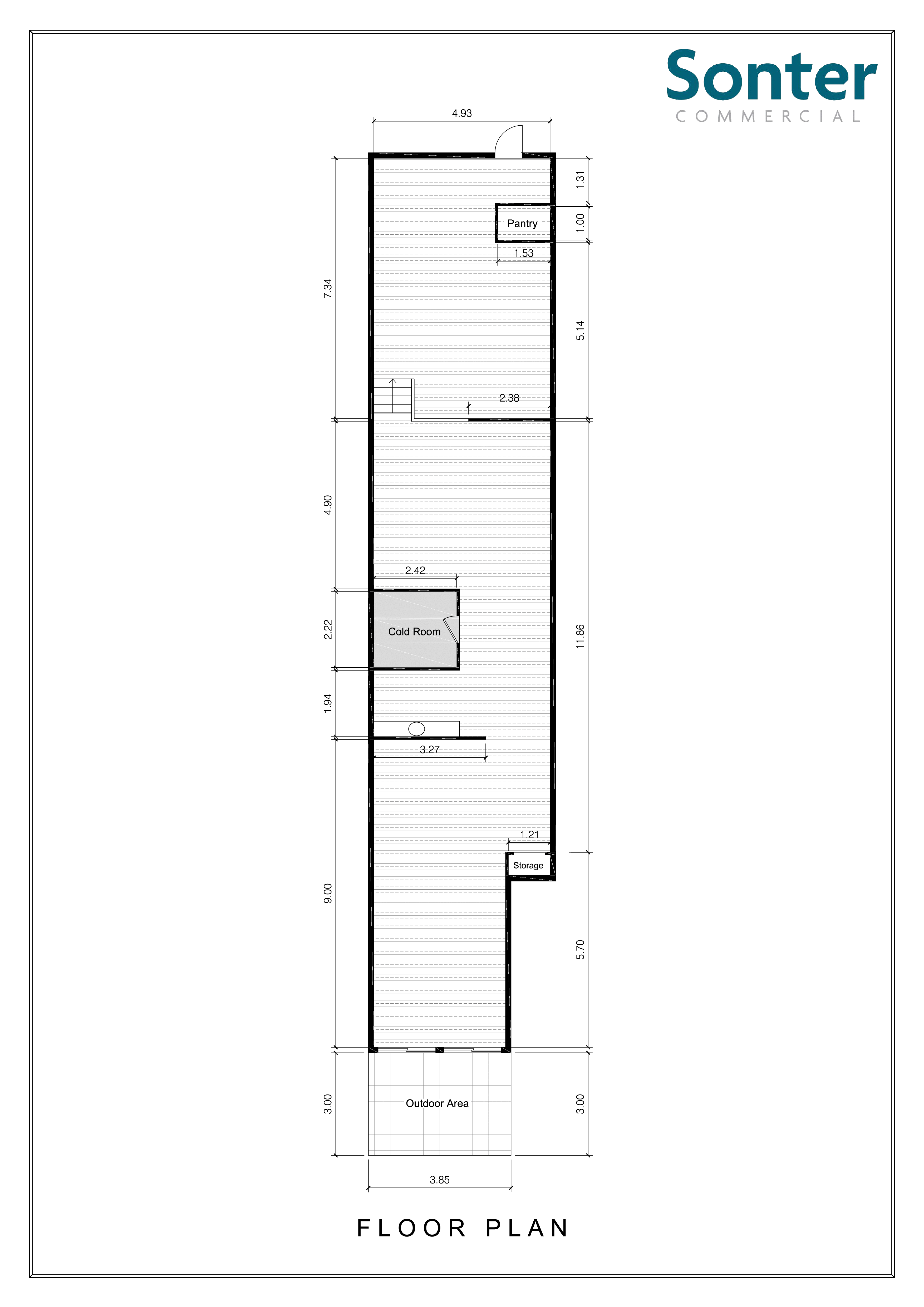
This shop was previously used as a bakery, and is still fully fitted out for this use, complete with all equipment needed to start baking straight away.

Alternatively, the shop can be reconfigured to be used for food, hospitality or retail uses.

This great shop has the following features available to the new tenant:

* Located on busy Musgrave Ave with high levels of foot traffic at all times of the day;
* 133m2 of versatile space that can be configured for varied uses;
* Grease trap is connected to the shop;
* Currently compliant for food uses;
* Cold room installed and fully operational;
* Small alfresco area at the front of the shop;
* Male and female amenities;
* Car parking available at the rear of the building;
* Large free all day Council car park located across the street;
* Competitive rent offered for a shop in this location;
* Incentives available to the right tenant;
* Serious landlord wants long term serious tenant.
* Inspect now!

Contact The Agent

Chris Bristow

Commercial Sales & Leasing
0412 218 802
Email Agent
View My Properties
Property ID 20226821
Building Size 133 sqm

Brochure

Apply

Share

Talk with an agent: 07 5532 2857

Connect with us

Sonter Agency

Address

Sonter Agency
1/7-9 Stevens Street
Southport, QLD 4215

Sonter Agency 2026 | Privacy | Marketing by Real Estate Australia and ReNet Real Estate Software